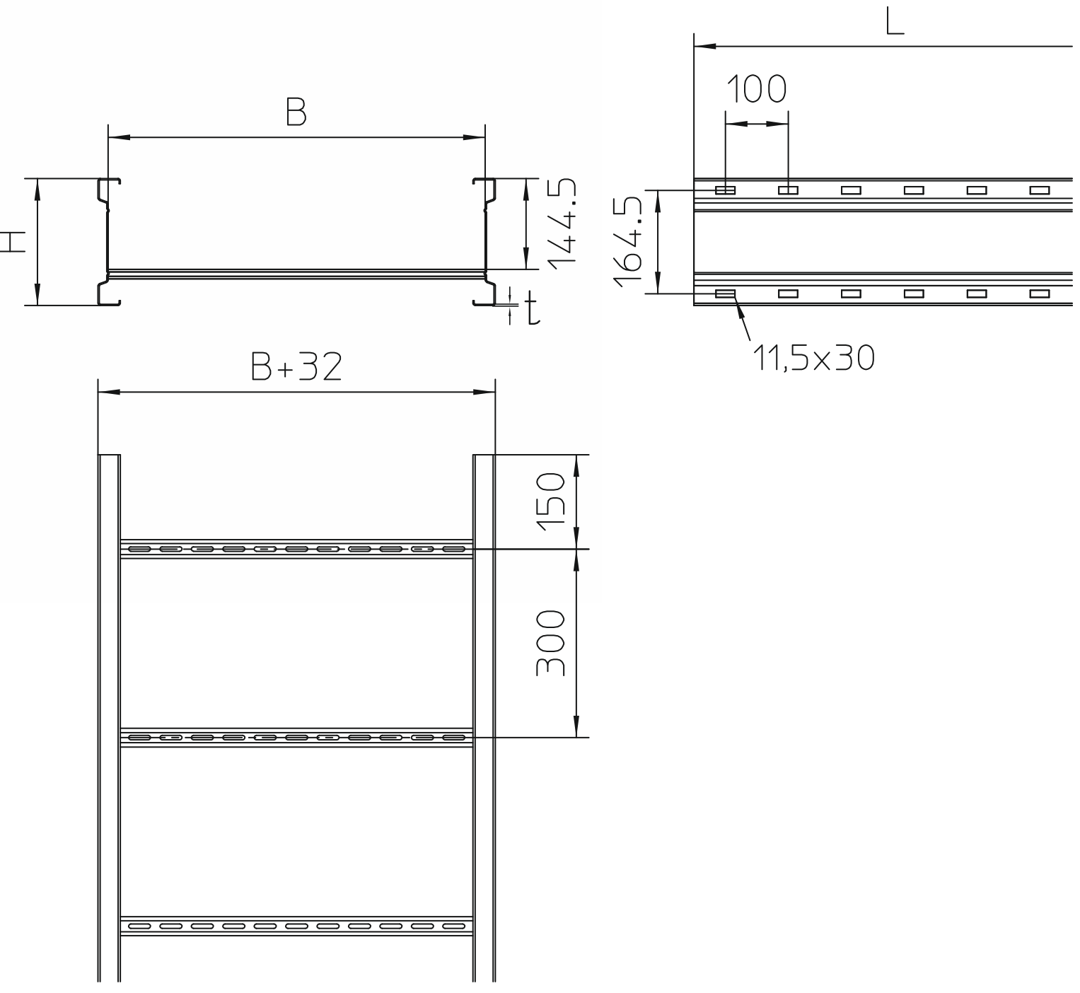
Samonośna drabinka kablowa, wysokość=200 mm.
Samonośna drabinka kablowa wyposażona w perforowane wzdłużnice oraz spawane perforowane szczeble o profilu „C”. Drabinka utrzymuje ciągłość potencjału zgodnie z DIN EN 61537.
Samonośna drabinka kablowa, wysokość=200 mm.
Samonośna drabinka kablowa wyposażona w perforowane wzdłużnice oraz spawane perforowane szczeble o profilu „C”. Drabinka utrzymuje ciągłość potencjału zgodnie z DIN EN 61537.
| Nazwa | H[mm] | B[mm] | L[mm] | t[mm] | A[cm2] | Qsk[kN/m] | Qlk[kN/m] | G[kg] | |
|---|---|---|---|---|---|---|---|---|---|
| WL 200-20S |
202
|
200
|
6000
|
2,00
|
281
|
0,42
|
0,79
|
56,22
|
|
| WL 200-30S |
202
|
300
|
6000
|
2,00
|
422
|
0,63
|
1,18
|
57,98
|
|
| WL 200-40S |
202
|
400
|
6000
|
2,00
|
565
|
0,85
|
1,58
|
59,76
|
|
| WL 200-50S |
202
|
500
|
6000
|
2,00
|
707
|
1,06
|
1,98
|
61,52
|
|
| WL 200-60S |
202
|
600
|
6000
|
2,00
|
849
|
1,27
|
2,38
|
63,23
|
| Nazwa | H[mm] | B[mm] | L[mm] | t[mm] | A[cm2] | Qsk[kN/m] | Qlk[kN/m] | G[kg] | |
|---|---|---|---|---|---|---|---|---|---|
| WL 200-20F |
202
|
200
|
6000
|
2,00
|
281
|
0,42
|
0,79
|
60,15
|
|
| WL 200-30F |
202
|
300
|
6000
|
2,00
|
422
|
0,63
|
1,18
|
62,03
|
|
| WL 200-40F |
202
|
400
|
6000
|
2,00
|
565
|
0,85
|
1,58
|
63,94
|
|
| WL 200-50F |
202
|
500
|
6000
|
2,00
|
707
|
1,06
|
1,98
|
65,82
|
|
| WL 200-60F |
202
|
600
|
6000
|
2,00
|
849
|
1,27
|
2,38
|
67,70
|