Your cart is empty

  • Konstrukcje do montażu paneli PV

GM-1P 1V

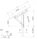
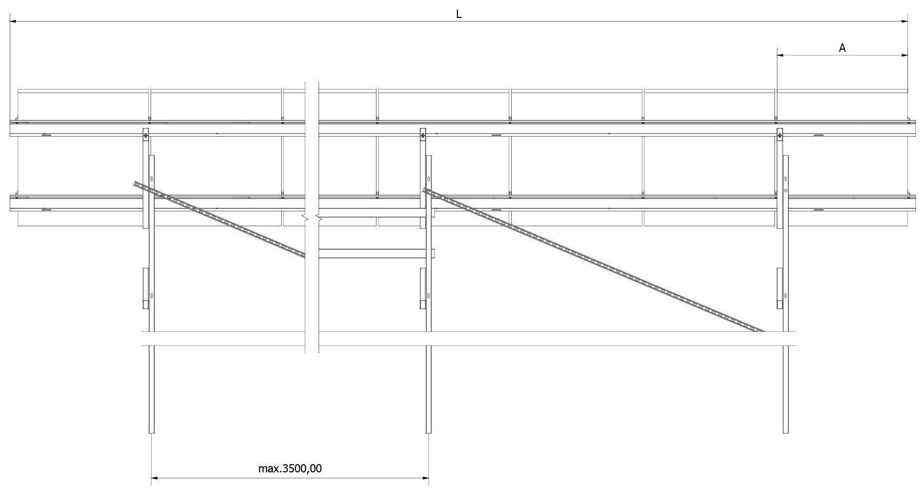
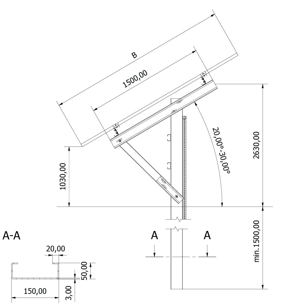
Konstrukcja fotowoltaiczna wolnostojąca jednopodporowa

Konstrukcja jednopodporowa wbijana w grunt, stanowiąca kompletny system wsporczy dla paneli fotowoltaicznych, umożliwiający zamocowanie jednego rzędu paneli w układzie pionowym.
Możliwy kąt pochylenia stołu w zakresie 20-30 stopni.

Informacje / Information
• Materiał / Material: stal konstrukcyjna o podwyższonej wytrzymałości / structural steel with increased durability
• Powłoka antykorozyjna / Anti-corrosion coating: magnelis® wg. PN-EN 10346, ocynk ogniowy wg. PN-EN 1461 / magnelis® acc. PN-EN 10346, hot dip galvanized acc. PN-EN 1461
• Połączenia złączne / Screw connection: śruby klasa 8.8 ocynk ogniowy wg. PN-EN 1461 / screws class 8.8 hot dip galvanized acc. PN-EN 1461
• Mocowanie paneli / Modules mounting: klemy aluminium 6060 / clamps aluminium 6060, śruby, nakrętki podkładki ASTM 304 / screws, nuts, washers ASTM 304

Opcje / Option:
• Mocowanie inwertera / inverter mounting set
• Mocowania do fundamentu / Foundation foot
• Korytka kablowe / Cable trays
• Kąt pochylenia 20-30° / Slope angle 20-30°