Main
Menu
Products
Magnelis®
Company
News
References
Contact
Downloads
Go
Polski
English
Your cart is empty
You have
0
items in your cart.
Show cart
Products
Cable management systems
Wire-mesh cable trays
Cable trays
Cable ladders
Wide-span systems
Vertical ladders
Support systems
Fastenings
Line of protection tubes
Light channel system
Ship ladders
Floor ducts
Cable clamp
Cable clamp
Vats
HF-cable clamps
Cable clamps made of polyamide
Cable support trough
PV systems
Ground mounted
Roof mounted
Konstrukcje fotowoltaiczne carport
Konstrukcje fotowoltaiczne balkonowe
Underfloor systems
Screed flush duct systems
Screed-covered duct systems
Installation units for screed and hollow floors
Mounting boxes and installation devices
Magnelis®
Company
EL-PUK
GDPR
Quality
Our Group
History
Service
Assembly
Planning
Services
News
References
Contact
Downloads
Menu
Home
Products
PV systems
Roof mounted
Flat roof
Penetrating
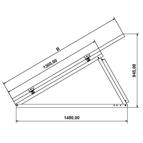
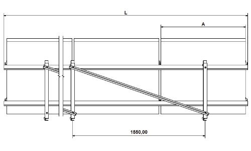
FR-AL V
FR-AL V
Karta katalogowa SYSTEM FR-AL V
pdf | 754.05 KB
Roof mounted - flat roof - penetrating