Your cart is empty

  • Konstrukcje do montażu paneli PV

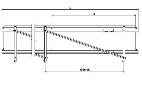
FR-AL H

Roof mounted - flat roof - penetrating