Your cart is empty
You have 0 items in your cart.
Show cart
Declaration of conformity
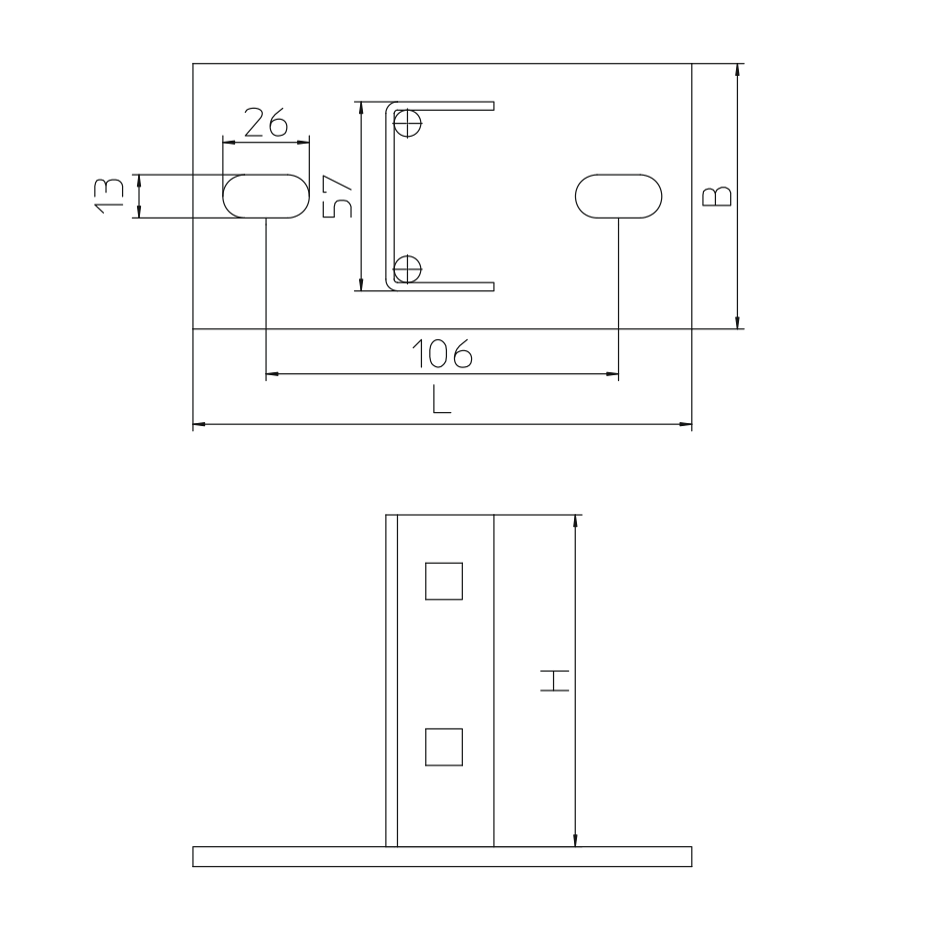
Płyta czołowa, profil U50.
Płyta czołowa przystosowana do montażu na profilach U50.